オモテとウラの調整に使用するチャートがそれぞれ用意されています。
出力したチャートの測定ポイントをスケールなどで測定してから、測定値を入力して調整します。
測定値を入力するだけで表裏を調整できるので、新しい種類の用紙で両面印刷する場合や、トレイの用紙を変更した場合などで表裏の位置ズレが不明確なときに便利です。
[チャート調整/オモテ]画面が表示されます。


チャートが出力されます。

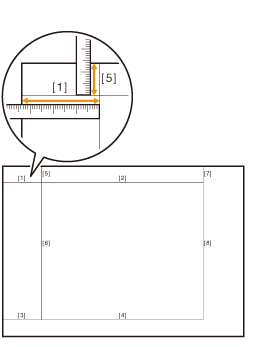
図は、[1]と[5]を測定するときの例です。
0.1 mm単位まで入力できます。

[チャート調整/ウラ]画面が表示されます。


チャートが出力されます。
」と、front面(オモテ面)の「
」のズレを測定します。
図は[1]を測定するときの例です。目盛りの間隔は0.5 mmです。
図の黒い「
」はオモテ面、青い「
」はウラ面を示しています。
0.1 mm単位まで入力できます。

手順10の図のように、[1]の「
」が、オモテ面よりX方向のプラス側に2.0 mm、Y方向のマイナス側に1.5 mm ズレているときは、[1]はウラ面の青い線をX方向のマイナス側に2.0 mm、Y方向のプラス側に1.5 mm移動させたいので、Xは20と入力して[+/-]を押し、Yは15を入力して補正します。